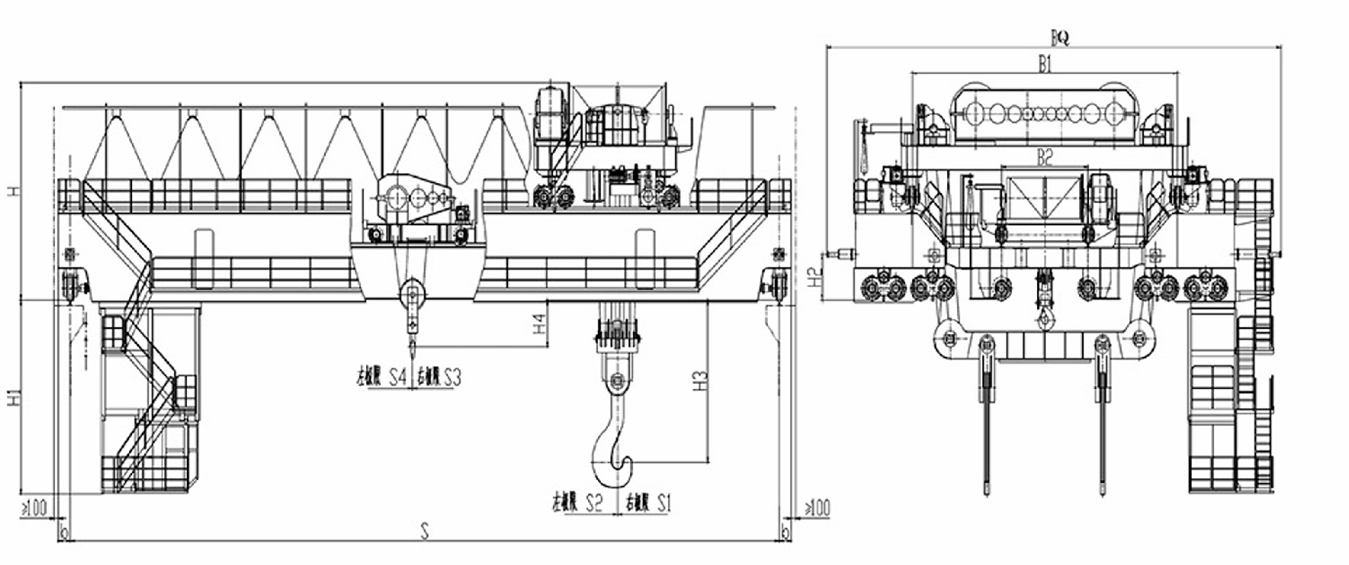
Four-Girder Cast Charging Crane
High-Temperature Lifting Solutions for Electric Arc Furnace (EAF) Charging
Henan Mine’s charging crane is a core component in steelmaking facilities, purpose-built for feeding electric arc furnaces (EAF) with scrap or molten metal. Designed for continuous operation under extreme heat, this overhead crane is also capable of delivering hot metal to the ladle furnace (LF) or continuous casting machine (CCM). Engineered with a four-girder configuration, it provides exceptional stability, lifting accuracy, and long service life.
In many plants, this crane also serves as a backup to ladle handling cranes, ensuring production continuity in critical scenarios.
| Parameter | Value / Range |
| Crane Type | Overhead Charging Crane |
| Structural Design | Four-Girder with Twin Trolleys |
| Lifting Capacity | Up to 500 tons (customized) |
| Lifting Mechanism | Dual-trolley with synchronized drive |
| Application Environment | High heat, molten metal, 24/7 duty |
| Heat Protection | Thermal insulation, flame shielding |
| Power Supply | 3-Phase AC, customized voltage |
| Control System | Cabin + Optional Remote |
| Redundancy | Backup brake, dual drives, limiters |
| Certification | GB / ISO / CE-compliant |






Fill in the form below to get instant access to the cranes catalogue and speak to our technical team for recoomendations